Nos Studios Suites
Nos studios suites réinventent le séjour : un espace à vivre, connecté, design et libre
.webp)
Un éventail de logements, pensé pour répondre à toutes vos envies :
Chaque espace, aéré et lumineux, dispose d’une terrasse / balcon offrant des vues imprenables.
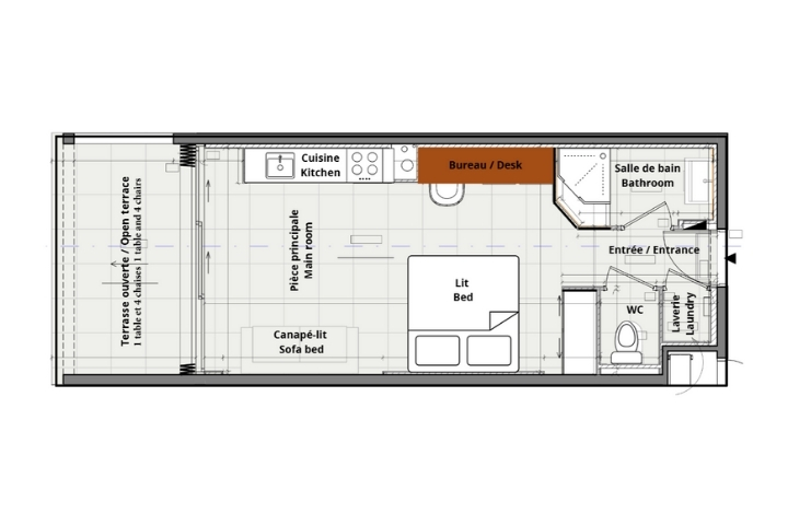
Studio Suite Premium, vue jardin
D’une superficie de 43 m², situé au rez-de-chaussée, ce studio suite spacieux et lumineux peut accueillir confortablement de 2 à 4 personnes. Il comprend une pièce à vivre bien agencée avec une cuisine équipée et un coin salon, un espace bureau et une table avec quatre chaises sur le patio, idéal pour partager vos repas ou télétravailler en toute tranquillité. La terrasse est spacieuse.
L’espace nuit est aménagé avec un grand lit de 180 cm et un canapé-lit de 177 cm.
La cuisine entièrement équipée comprend, un réfrigérateur et un congélateur, une hotte aspirante,un four classique avec plaques chauffantes, un four à micro onde, une hotte aspirante, une cafetière classique et à expresso, une bouilloire, de la vaisselle et de nombreux rangements, vous permettant de cuisiner facilement comme à la maison.
Salle de bain moderne comprenant une douche et une vasque, ainsi que des toilettes séparées.
Parmi les équipements à votre disposition : télévision, accès Wi-Fi, climatisation, coffre-fort, placards, lave-linge, étendoir ou sèche-linge, pelle et balais pour un séjour tout confort.
Le studio suite premium en rez de chaussée offre également une agréable vue sur le jardin, parfait pour se détendre dans un cadre verdoyant et apaisant.
Une bouteille d'eau fraiche vous est offerte à votre arrivée.
A noter : une machine à laver le linge est discrètement située dans le studio suite premium, vue jardin
Studio Suite Supérieur, vue jardin
Situé à l’étage, ce studio suite de 43 m² accueille confortablement de 2 à 4 personnes. Il se compose d’une pièce à vivre lumineuse et bien organisée, avec un coin salon, un espace bureau, ainsi qu’une table et quatre chaises pour vos repas ou moments de travail. La terrasse est spacieuse.
La cuisine entièrement équipée comprend un réfrigérateur et un congélateur, une hotte aspirante, un four classique avec plaques chauffantes, un four à micro onde, une hotte aspirante, une cafetière classique et à expresso, une bouilloire, de la vaisselle et de nombreux rangements, vous permettant de cuisiner facilement comme à la maison. L’espace nuit dispose d’un lit spacieux de 180 cm et d’un canapé-lit de 177 cm, parfait pour un séjour en couple, en famille ou entre amis.
La salle de bain moderne est équipée d’une douche et d’une vasque, tandis que les toilettes sont séparées pour plus de confort. Parmi les nombreux équipements disponibles : télévision, accès Wi-Fi, climatisation, coffre-fort, placards de rangement, étendoir ou sèche-linge.
Le studio suite supérieur, vue jardin, offre une agréable vue sur le Jardin et certains peuvent entrevoir la mer, parfait pour se détendre dans un cadre verdoyant et paisible.
Une bouteille d'eau fraiche vous est offerte à votre arrivée.
A noter : une machine à laver le linge est discrètement située dans le studio suite supérieur, vue jardin
Studio Suite Deluxe, vue océan
Situé à l’étage, ce studio suite avec vue mer de 43m2 offre un cadre confortable et lumineux pour accueillir de 2 à 4 personnes. Il se compose d’une grande pièce à vivre avec un coin salon, un espace bureau, ainsi qu’une table et quatre chaises à l'extrieur sur la terasse, idéale pour vos repas ou moments de détente. La terrasse / balcon est spacieux avec une belle vue sur l'océan et la Baie de l'Anse Marcel.
La cuisine entièrement équipée comprend, un réfrigérateur et un congélateur, une hotte aspirante,un four classique avec plaques chauffantes, un four à micro onde, une hotte aspirante, une cafetière classique et à expresso, une bouilloire, de la vaisselle et de nombreux rangements, vous permettant de cuisiner facilement comme à la maison.
Depuis la chambre, profitez d’une superbe vue sur l’océan, pour un séjour alliant confort, autonomie et évasion.
L’espace nuit dispose d’un lit spacieux de 180 cm et d’un canapé-lit de 177 cm, parfait pour un séjour en couple, en famille ou entre amis.
La salle de bain moderne est équipée d’une douche, d’une vasque et des toilettes séparées.
Vous trouverez également à disposition : télévision, accès Wi-Fi, climatisation, coffre-fort, placards, étendoir, pelle et balais.
A noter : une machine à laver le linge est discrètement située dans le studio suite seluxe, vue océan.
Une bouteille d'eau fraiche vous attend à l'arrivée.

















